Floor Plans - Flagler Estates

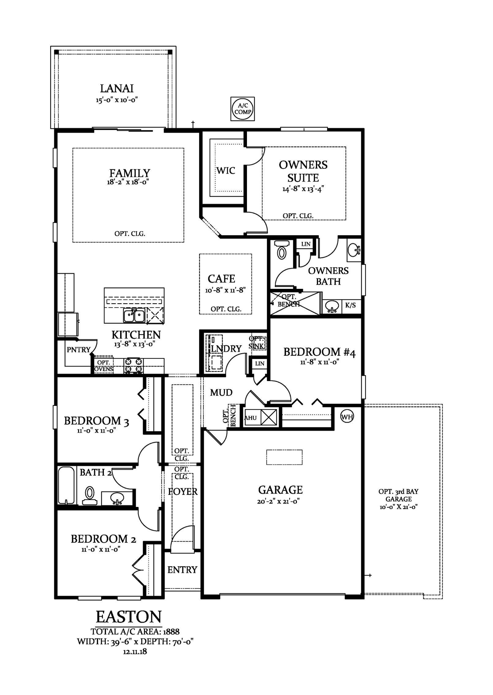
The Easton

Our Easton home features a deluxe kitchen with large center island overlooking the family room, which opens onto the rear lanai. Eat-in café/dining area off kitchen. Open floor plan with 4 bedrooms, 2 baths and 2-car garage.

A black and white ruler on a white background.

1,888 sq. ft.

A line drawing of a bed with two pillows on a white background.

4

A black and white drawing of a bathtub with a shower head.

2

A black and white drawing of a bus on a white background.

2

Exterior Elevations

Floor Plan