Floor Plans - Beach Haven

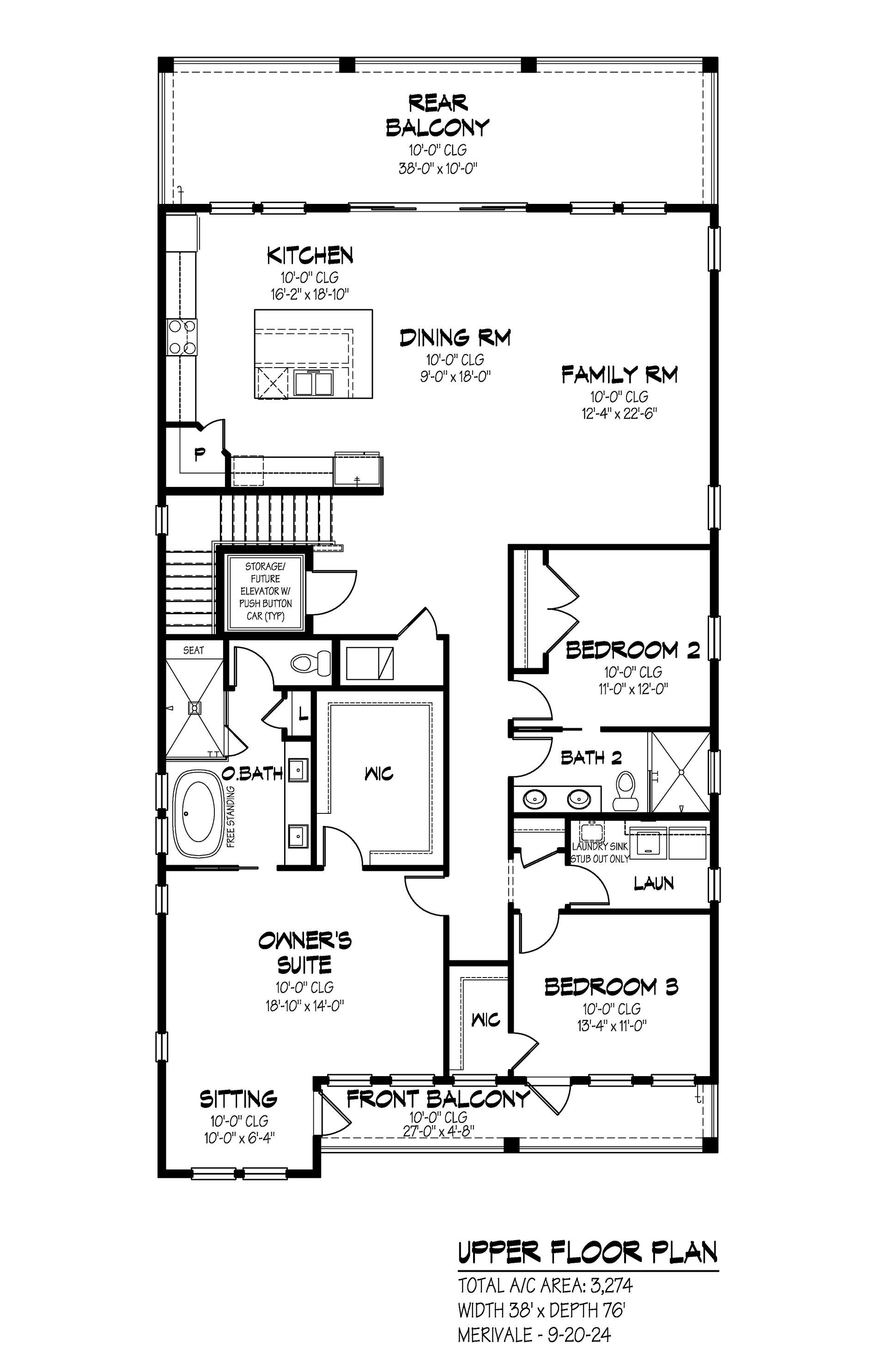
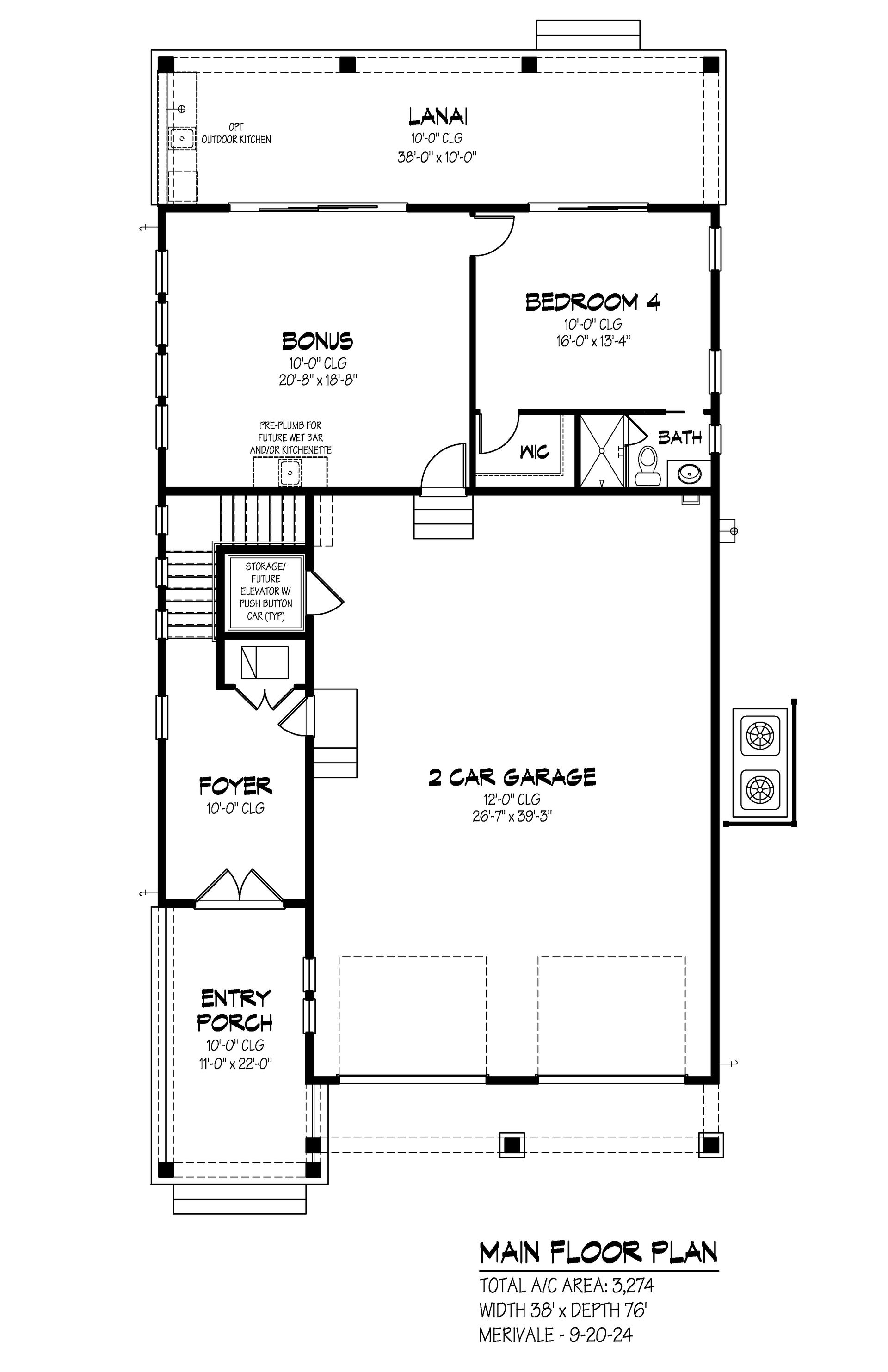
The Merivale

Our Merivale floor plan has so much to offer. This home features 4 bedrooms, 3 baths, with a kitchen that overlooks the dining room and family room, creating an open and inviting space. For added charm and outdoor living, there are both front and rear balconies, perfect for relaxing and enjoying the views. The first-floor bonus room provides extra space that can be customized to suit your needs.

A black and white ruler on a white background.

3,274 sq. ft.

A line drawing of a bed with two pillows on a white background.

4

A black and white drawing of a bathtub with a shower head.

3

A black and white drawing of a bus on a white background.

2

Exterior Elevations

Floor Plan